SPECIAL FEATHERS
- The Filter cloth and Plates, made by special materials are high durable.
- Easy operation and full automatic system do not require an operator throughout processing
- Possible to desposal the cake(sludge) ,which filtered sludge after filter processing, right after working by Truck
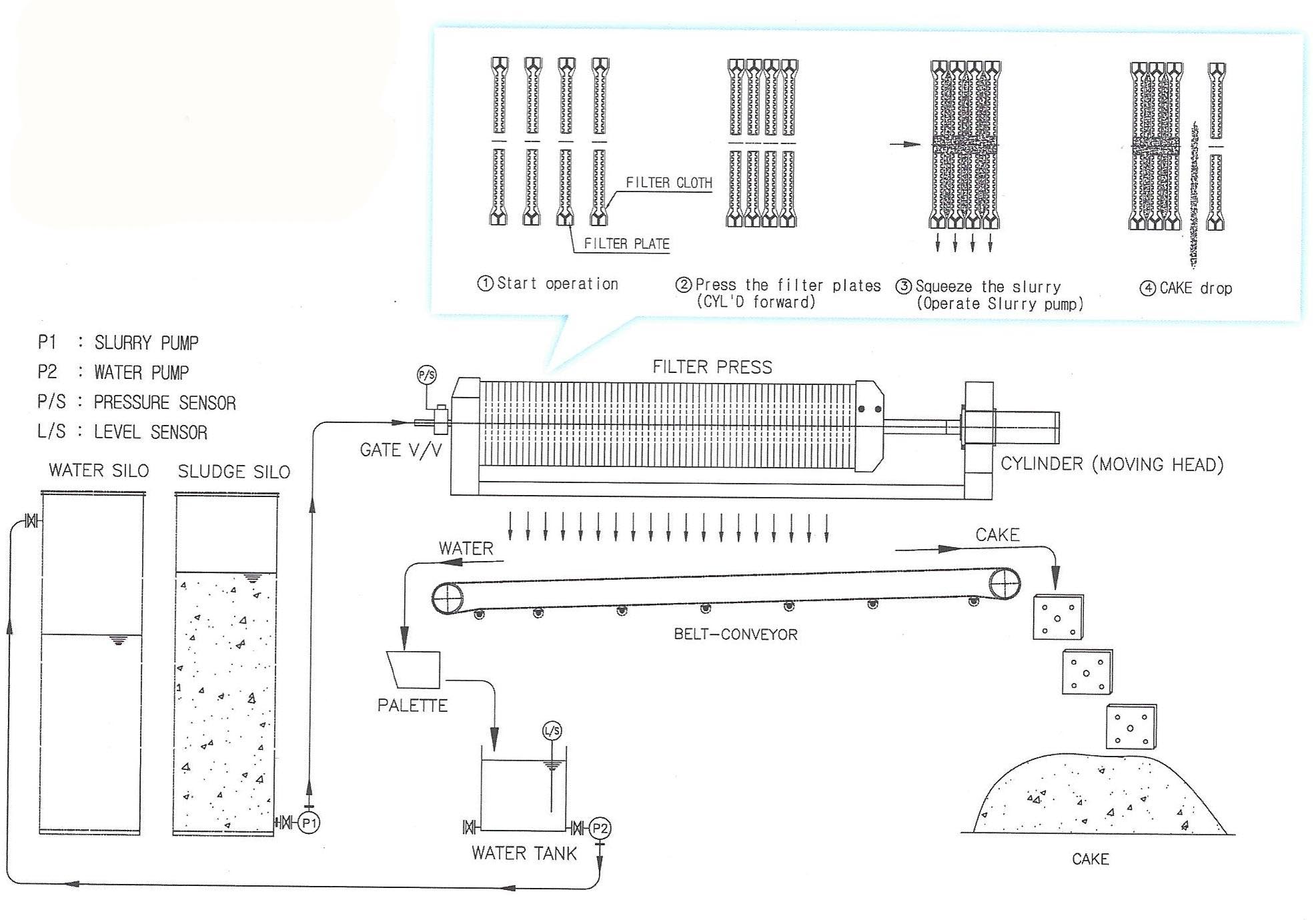
FILTER PRESS FLOW CHART


